Raum für Ruhe und Energie
Inmitten der Natur, umgeben von frischer Bergluft und dem weiten Blick in die Landschaft, entstehen Räume, in denen Stille, Inspiration und Begegnung möglich werden.
Ob Yoga, Achtsamkeit, Coaching, Meditation oder kreative Prozesse – die Weite des Himmels und der Blick auf die Berge unterstützen jede Form innerer und äußerer Arbeit.
Statt geschlossener Räume entsteht ein freier Seminarraum, in dem Bewegung, Atmung und Bewusstsein fließen dürfen.
Zwischen blühenden Stauden und sanft bewegten Gräsern finden sich kleine Plätze Der Stille – für Meditation, Reflexion oder einfach nur zum Sein.
Hier darf jeder Teilnehmende seinen eigenen Raum der Ruhe entdecken.
Buchungen und Fragen:
+49 (0) 8665 / 6730
Seminarraum 1
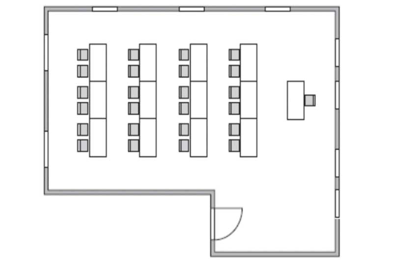
Der 63 m² große Seminarraum mit eigener Terrasse bietet je nach Bestuhlung Platz für bis zu 35 Personen.
• 63 m²
• mit direktem Zugang zur eigenen Terrasse
• 2 separate Gruppenräume in der Nähe*
(*Insgesamt stehen 5 Gruppenräume gegen Aufpreis zur Verfügung)
Ausstattung im Detail
• mobiles Display mit ClickShare
• Pinnwände
• Flipcharts
• Moderationskoffer inklusive
Moderationsmaterial
• W-LAN
• Raumluftreiniger
Auf Anfrage auch erhältlich:
• Videokamera
• DVD-Player
• CD-Player
Seminarraum 2
Unser Seminarraum 2 bietet mit 71 m² viel Platz für Ihre Seminare. Viele Fenster sorgen für Helligkeit und einen herrlichen Blick auf das Inzeller Bergpanorama. Je nach Bestuhlung bietet dieser Seminarraum Platz für bis zu 50 Personen.
• 71 m²
• 2 separate Gruppenräume in der Nähe*
(*Insgesamt stehen 6 Gruppenräume gegen Aufpreis zur Verfügung)
Ausstattung im Detail
• mobiles Display mit ClickShare
• Pinnwände
• Flipcharts
• Moderationskoffer inklusive
Moderationsmaterial
• W-LAN
• Raumluftreiniger
Auf Anfrage auch erhältlich:
• Videokamera
• DVD-Player
• CD-Player
• Tageslichtprojektor
Seminarraum 3
Mit 79 m² ist Seminarraum 3 unser größter Tagungsraum und bietet je nach Bestuhlung Platz für bis zu 50 Personen. Auf der ruhigen und separaten Terrasse kann auch im Freien gearbeitet werden.
• 79 m²
• mit direktem Zugang zur eigenen Terrasse
• mit direktem Zugang zu separatem Gruppenraum (19,5 m²)*
• weitere Gruppenräume in der Nähe*
(*Insgesamt stehen 5 Gruppenräume gegen Aufpreis zur Verfügung)
Ausstattung im Detail
• mobiles Display mit ClickShare
• Pinnwände
• Flipcharts
• Moderationskoffer inklusive
Moderationsmaterial
• W-LAN
• Raumluftreiniger
Auf Anfrage auch erhältlich:
• Videokamera
• DVD-Player
• CD-Player
• Tageslichtprojektor
Seminarraum 4
Der 74 m² große Seminarraum bietet durch den offenen Dachstuhl eine gemütliche Atmosphäre und je nach Bestuhlung Platz für bis zu 25 Personen.
• 74 m²
• mit direktem Zugang zum Balkon
• separater Gruppenraum in der Nähe (14 m²)*
(*Insgesamt stehen 6 Gruppenräume gegen Aufpreis zur Verfügung)
Ausstattung im Detail
• mobiles Display mit ClickShare
• Pinnwände
• Flipcharts
• Moderationskoffer inklusive
Moderationsmaterial
• W-LAN
• Raumluftreiniger
Auf Anfrage auch erhältlich:
• Videokamera
• DVD-Player
• CD-Player
• Tageslichtprojektor
Seminarraum 5
Für kleine Workshops steht der 20 m² große Seminarraum 5 mit Ausgang zum Garten und mit Blick auf die Chiemgauer-Alpenwelt für Sie bereit. Im Sommer kann die angrenzende Außenterrasse mitgenutzt werden und in der kalten Winterzeit steht Ihnen ein Kaminofen zur Verfügung, an dem Sie Ihre Besprechung vor knisterndem Feuer abhalten können.
Ausstattung im Detail
• mobiles Display mit ClickShare
• Pinnwände
• Flipcharts
• Moderationskoffer inklusive
Moderationsmaterial
• W-LAN
Auf Anfrage auch erhältlich:
• Videokamera
• DVD-Player
• CD-Player
Gruppenräume
Unsere ruhig gelegenen Gruppenräume (10 m² – 20 m²) können zusätzlich gegen Aufpreis gebucht werden.
Preis pro Tag 80,- EURO.
Die Ausstattung ist mit den Moderationsmaterialien wie in den Seminarräumen möglich. Bitte sprechen Sie uns an.
Buchungen und Fragen:
+49 (0) 8665 / 6730



































